Bij industriële toepassingen waar een hoge afvoercapaciteit vereist is, zoals bijvoorbeeld in brouwerijen of zuivelfabrieken, of bij toepassingen met veel vuilafvoer, waarbij een groot afvoervolume nodig is om de afvoer gemakkelijker te kunnen reinigen, zijn vloerafvoeren met een aansluitdiameter van DN 100 vaak te klein gedimensioneerd.
Hier biedt KESSEL een breed productassortiment voor lijn- en puntontwatering aan. Basiselementen in combinatie met roestvrijstalen goten of opzetstukken, evenals eendelige vloerafvoeren bieden voor elk toepassingsgebied de juiste oplossing.
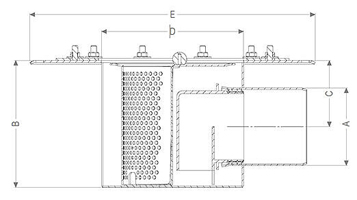
Hier zijn de afmetingen van de basiselementen voor dergelijke toepassingen:

Basiselement verticaal | |||||
| Afmeting A | Afmeting B | Afmeting C | Afmeting D | Afmeting E | |
| DN 125 | Ø 125 | Ø 284 | Ø 500 | 230 mm | 120 mm |
| DN 150 | Ø 160 | Ø 284 | Ø 500 | 230 mm | 120 mm |
| DN 200 | Ø 200 | Ø 350 | Ø 450 | 350 mm | 120 mm |
| DN 250 | Ø 250 | Ø 400 | Ø 500 | 500 mm | 120 mm |
| DN 300 | Ø 315 | Ø 450 | Ø 550 | 550 mm | 120 mm |

Basiselement horizontaal | |||||
| Afmeting A | Afmeting B | Afmeting C | Afmeting D | Afmeting E | |
| DN 125 | Ø 125 | 230 mm | 125 mm | Ø 284 | Ø 500 |
| DN 150 | Ø 160 | 230 mm | 125 mm | Ø 284 | Ø 500 |
| DN 200 | Ø 200 | 475 mm | 275 mm | Ø 350 | Ø 600 |
| DN 250 | Ø 250 | 475 mm | 275 mm | Ø 400 | Ø 600 |
| DN 300 | Ø 315 | 500 mm | 300 mm | Ø 450 | Ø 700 |

Kwaliteit ‘made in Germany’
De hele productserie Ferrofix is in Duitsland in ons eigen kenniscentrum in Ulm ontwikkeld en wordt daar gemaakt. Met meer dan veertig jaar ervaring als systeemaanbieder van rvs-systemen voor afwatering biedt het deskundigenteam van KESSEL Inox betrouwbare totaalservice voor hoogwaardige maatwerkoplossingen.

![Ontewerpassistent voor afvoeren [Translate to Niederländisch (NL):] Planungsassistent für Abläufe](/fileadmin/Bilder/Produkte/04_Ablauftechnik/Badablaeufe/kes_themenweltartikel_grafiken_2.png)

